Opis nieruchomości
KUPUJĄCY ZWOLNIONY Z PODATKU PCC!!!* OKOLICA:
Rozległe tereny zielone i lasy – idealne na spacery, jogging czy jazdę na rowerze, Zalew Kryspinów (15 minut),
szkoła podstawowa, przedszkole i żłobek, lokalne sklepy, restauracje i punkty usługowe.
Kameralne osiedle nowoczesnych domów w zabudowie bliźniaczej, stworzone dla osób ceniących komfort, energooszczędność i bliskość przyrody. Położone w spokojnej Dąbrowie Szlacheckiej, zaledwie 20 minut od centrum Krakowa, oferuje idealne warunki do życia – ciszę, tereny rekreacyjne oraz szybki dostęp do miasta.
* OPIS INWESTYCJI:
Każdy segment ma powierzchnię 80 m², prywatny taras i ogródek o powierzchni około 200 m², a także przypisane miejsce postojowe, budynki murowane z pustaka ceramicznego porotherm, wyposażone w ogrzewanie podłogowe, rekuperację, rolety antywłamaniowe, instalację centralnego odkurzacza oraz dach solarny o mocy 6 kWp.
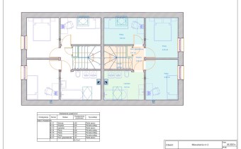
* ROZKŁAD POMIESZCZEŃ:
- parter: przestronny salon z bezpośrednim wyjściem na ogród, funkcjonalna kuchnia, WC oraz kotłownia,
- piętro: trzy wygodne sypialnie, duża łazienka oraz pomieszczenie gospodarcze,
* STAN PRAWNY:
Każdy segment stanowi odrębny lokal mieszkalny z udziałem w częściach wspólnych oraz w drodze dojazdowej. Ogródek i podjazd z miejscem postojowym do wyłącznego korzystania przez właścicieli poszczególnych lokali.
W sprawie umówienia terminu prezentacji lub uzyskania dodatkowych informacji o ofercie zapraszamy do kontaktu telefonicznego (81-532-99-44, 573-299-944) lub mailowego (kamil@anma-lublin.pl)
Nota prawna
Opis oferty zawarty na stronie internetowej sporządzany jest na podstawie oględzin nieruchomości oraz informacji uzyskanych od właściciela, może podlegać aktualizacji i nie stanowi oferty określonej w art. 66 i następnych K.C.Szczegóły



