Opis nieruchomości
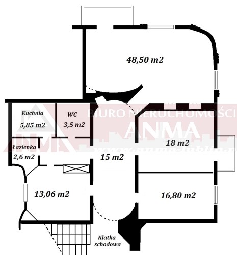
Wyjątkowy, reprezentacyjny lokal w kamienicy z 1928r. w rejonie ul. Narutowicza.4 pomieszczenia biurowe o powierzchni 48, 18, 16,8 i 13m2 (dwa z dużymi balkonami) ponadto kuchnia łazienka, WC i efektowny hol. Ostatnim najemcą była kancelaria adwokacka.
Lokal po generalnym remoncie 15 lat temu- obecnie świeżo pomalowany.
Okna nowe z PCV; na podłogach gres. We wnękach - przeszklone szafy na dokumenty.
Wnętrza są wysokie i słoneczne - wystawa okien południowo- zachodnia.
Ogrzewanie i ciepła woda z dwu funkcyjnego pieca gazowego.
Lokal wyposażony jest w system alarmowy.
Czynsz administracyjny wraz z podatkiem wynosi 1000zł/m-c.
Czynsz najmu wynosi 5250zł. Dodatkowo płatne będą: prąd, gaz i woda.
LOKAL OFEROWANY JEST TAKŻE NA SPRZEDAŻ!
Zainteresowanych zapraszamy na prezentację.
Nota prawna
Opis oferty zawarty na stronie internetowej sporządzany jest na podstawie oględzin nieruchomości oraz informacji uzyskanych od właściciela, może podlegać aktualizacji i nie stanowi oferty określonej w art. 66 i następnych K.C.Szczegóły



